A Designer’s Role In a Custom New Build

Building a custom home means building something that doesn't exist yet. It is a space shaped entirely around your life, your family, and your vision.

What most people don't expect during this process is just how many decisions that are actually involves. Not just the big ones, but the hundreds of smaller choices that quietly define the finished spaces. Where every outlet goes, the exact profile of every trim piece, which tile in which room, laid in which direction, the wood stain, the hardware, the placement of that hardware, the list goes on and on.

That's where we come in. Our job is to carry that weight with you, to bring the expertise, the eye, and the process that turns an overwhelming number of details into a home that feels completely, unmistakably yours.

The Roles

When you build a custom home at this level, you're typically working with four separate teams: an architect, a contractor, a landscape designer, and an interior designer. Most homeowners assume those roles overlap more than they do.

Your architect designs the structure, the bones of the home, how it flows, how it sits on the land. Your contractor builds it, but only what's already been decided.

The gap between those two is where most custom builds go sideways. Plans get handed off, construction starts, and suddenly someone has to decide custom cabinetry details, where the decorative lighting is placed, and what the baseboard height will be. Without a designer, that someone is you, fielding calls mid-build, making permanent decisions under time pressure.

We come on at the same time as your architect, sometimes before your contractor is even chosen. Our job is to translate the structure into a home designed entirely around you, making every interior decision, documenting it, and handing it off so your contractor can build it without guessing. And because we work closely with the best contractors in the area, we can help you find the right one before that becomes another decision on your plate.

Every Detail, Decided and Documented

Before your builder breaks ground, we put together what we call the Build Book. It's a complete set of construction-ready documents that accounts for every material, every placement, and every specification in the home.

The Build Book includes fully dimensioned drawings for trim, cabinetry, and architectural details. It covers everything from electrical layouts and cabinet dimensions to plumbing fixtures, and no detail is too small, even where your toilet paper holder goes. It documents plumbing locations, tile layouts with precise placement, and a complete spec schedule that ties every material selection to its exact location in the home.

Your contractor and every trade working on your home will reference these documents. This prevents major decisions being made in the field, because that's where decisions get expensive. That said, questions will come up during a build, and that's completely normal. Our job is to handle those on your behalf, so you never have to stress about it.

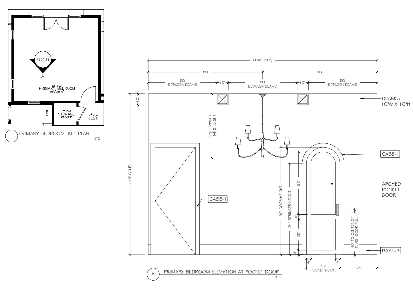
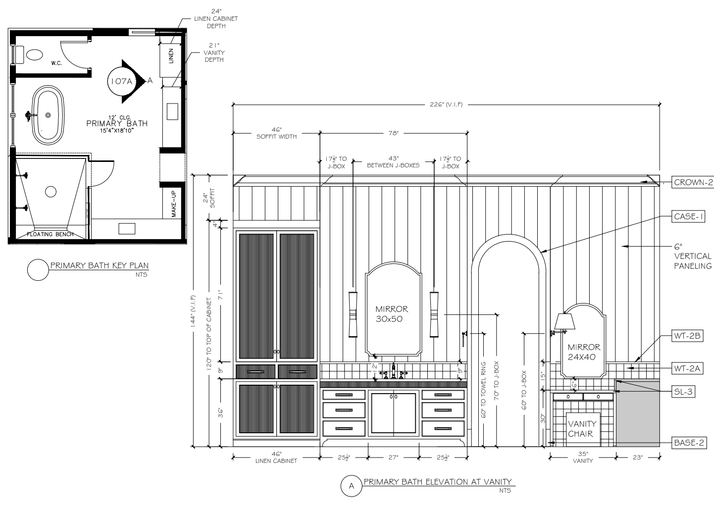
Here are some examples of drawings and specs that we include in the build book:

What It Costs to Decide Too Late

In a custom build, change orders aren't just an inconvenience, they're a sign that something wasn't planned properly. The clients who avoid costly surprises mid-build are almost always the ones who had a designer from the beginning. Two of the most expensive areas we see this play out are plumbing and electrical.

We worked with a client who came to us after framing was already complete. They had always wanted a sink in their basement kitchenette and a pot filler at their laundry dog station, but without a designer to help them plan and document it from the beginning, those details never made it into the build. A straightforward rough-in became a costly change order.

Had we been brought on before framing, it would have been in the Build Book, and the cost would have been accounted for before it was ever a problem.

What Early Involvement Actually Looks Like

When we’re brought in before construction begins, we work alongside your architect and contractor to make sure every design decision is resolved in the right sequence. You’re not being bombarded with urgent calls you don’t know how to answer. You’re not being asked to choose a fixture in two days because framing is almost done. You’re not discovering that something you wanted wasn’t accounted for until it’s too late to add it without consequence.

Instead, those conversations happen calmly, with full context, and before they become time-sensitive. The decisions get made once, correctly, and documented so they can be executed correctly.

That’s the experience a build at this level should feel like.

If you’re in the early stages of planning a custom home, the best time to bring us in is before you need us. Reach out to start the conversation.

Next
Next

Spring Favorites